В Интернете можно найти много проектов коттеджей, отличающихся этажностью, площадью, внешним видом и материалами, из которых предполагается строительство здания. Однако все эти проекты платные, то есть для того, чтобы получить проект, надо оплатить его стоимость.


Вместе с тем, каждая из компаний, занимающаяся проектированием, выставляет в свободный доступ фотографии внешнего вида и схематические поэтажные планы тех коттеджей, проекты которых она предлагает купить и использовать для строительства. Вот эти материалы можно скачать для того, чтобы рассмотреть более тщательно, сравнить с другими проектами и, учитывая разницу в стоимости, по которой предлагают приобрести проект, принять решение о покупке.
Лично я считаю, что приобретать проект надо не у компаний-посредников между проектировщиками и покупателями, а непосредственно у проектных организаций, так как стоимость у них всегда меньше, чем у посредников (как и при покупке любого другого продукта).
Могу посоветовать ознакомиться с проектами серьезной международной компании, называемой «Архитектурное бюро Z500». Вот внешний вид одного из коттеджей площадью чуть больше 100м2, который лично мне очень нравится:
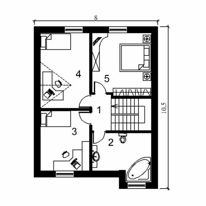
1-й этаж
2-й этаж
Вот ссылка на их сайт. Если ничего у них не понравится, то гляньте на проекты компании House projects Ltd (ссылка на их сайт здесь). Вот внешний вид одного из коттеджей (проект называется «Agneta») площадью 132,82 м2.
Первый этаж
Второй этаж