Если вы видите это сообщение, значит, произошла проблема с загрузкой файлов в стилей (CSS) нашего сайта. Попробуйте сбросить кэш браузера (Ctrl+F5).
Если это не поможет, а вы находитесь в регионе, где возможны ограничения интернет-трафика с российских серверов - воспользуйтесь VPN.
0

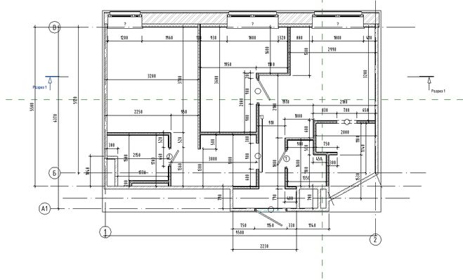
Сколько метров и какого сечения кабель необходим для данной планировки?

Rashitgaray [16.4K] 11 минут назад 

Знаете ответ?
регистрация