Если вы видите это сообщение, значит, произошла проблема с загрузкой файлов в стилей (CSS) нашего сайта. Попробуйте сбросить кэш браузера (Ctrl+F5).
Если это не поможет, а вы находитесь в регионе, где возможны ограничения интернет-трафика с российских серверов - воспользуйтесь VPN.
1

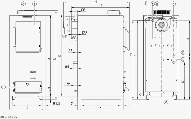
Где найти чертежи пиролизного котла?

Merlinka [1.2K] 10 лет назад 

Сосед сделал себе пиролизный котел самостоятельно. Мы тоже решили попробовать, подскажите, где найти понятные чертежи таких котлов?

2

Пиролизный котел – это не обычная печка. В таком агрегате происходят довольно сложные процессы. Чертежи подобных конструкций есть, но они общие. Найти подробные, на которых указаны размеры и диаметры всех трубок, а также используемые материалы довольно сложно. Если у вас есть соответствующие знания, то деталировку можно и самим осуществить. При этом учитывайте, что котел нужно не просто собрать, он должен работать корректно и эффективно.

система выбрала этот ответ лучшим
1

Что бы правильно изготовить пиролизный котел надо правильно подобрать материал для работы, а это для человека не особо разбирающегося в материалах сложно. Поэтому для устойчивой и длительной работы таких котлов Вам понадобится марка стали - 20х23н18. Другие металлы не подойдут для изготовления такого котла и он с успехом скоро придет в негодность.

Зайдите вот сюда:

http://pirolizkotel­.ru/Images/Chertezhy­/020-7.pdf

Это подетальный чертеж пиролизного котла.

Еще что бы подготовиться правильно к работе по изготовлению такого котла посмотрите вот здесь и внимательно все почитайте.

http://pirolizkotel­.ru/

Знаете ответ?
регистрация